Дизайн-проект квартиры-студии

Ремонт "под ключ" Квартиры студия 17 кв.м. в

Стоимость дизайн-проекта
19 990 ₽
Стоимость услуг по ремонту
380 661 ₽
Bg

ВИЗУАЛИЗАЦИИ


Эта небольшая квартира-студия отличается функционализмом и современным видом. В качестве базового использован бежевый цвет. Он идеально сочетается с яркими акцентами, представленными в оформлении текстиля и кухонной мебели. Пространство комнаты визуально поделено на две функциональные зоны - кухни и гостиной. Несмотря на маленькую площадь, здесь удалось разместить все самое необходимое.



Смета на услуги ремонта

Общая стоимость работ – 380 661 ₽
Общие работы
Стоимость всех товаров: 36 047 ₽
Посмотреть
Скрыть
Назад
Общие работы
Стены
НазваниеКодЕд. изм.ЦенаОбъемСтоимостьФактически
Грунтовка стен2.2.001кв.м. 24,2532 776,00776
Шпатлевание стен по сетке1 слой2.2.0051кв.м. 174,60325 587,205587,2
Кладка перегородок из пазогребневых блоков или пенобетона толщиной до 100 мм2.2.024кв.м. 417,1021,58 967,658967,65
Устройство металлической перемычки2.2.025п.м. 266,751,5 400,13400,125
Монтаж сетки под штукатурку2.2.043кв.м. 130,9534,24 478,494478,49
Устройство простых ниш из гкл2.2.058кв.м. 509,252,51 273,131273,125
Монтаж пластиковой сетки2.2.069кв.м. 130,95324 190,404190,4
Устройство звукоизоляции стен по системе типа "Руспанель"2.1.099кв.м. 266,7538,910 376,5710376,575
Стоимость



36 049,5736049,565
Общая стоимость



36 049,5736049,565
Общая стоимость работ
36 047 ₽
Сантехника
Стоимость всех товаров: 55 457 ₽
Посмотреть
Скрыть
Назад
Сантехника
Сантехника
НазваниеКодЕд. изм.ЦенаОбъемСтоимостьФактически
Устройство подиума душевой кабины из бетона2.5.002шт.3 210,7013 210,703210,7
Установка смесителя2.8.044шт. 785,701 785,70785,7
Устройство скрытого лючка из плитки (с монтажом механизма)2.6.013шт.2 085,5012 085,502085,5
Монтаж вентиляционного канала (в с.у или кухне от стояка вентиляции)2.8.007п.м. 407,405,52 240,702240,7
Установка вентилятора (с подключением)2.8.008шт. 286,151 286,15286,15
Устройство временного водоснабжения2.8.021шт.1 518,0511 518,051518,05
Устройство сантехнической штрабы2.8.022п.м. 548,05105 480,505480,5
Заделка сантехнической штрабы2.8.023п.м. 111,55101 115,501115,5
Установка шарового крана2.8.024шт. 324,952 649,90649,9
Установка коллектора (комплекс работ)2.8.029шт.1 833,3023 666,603666,6
Установка унитаза "компакт"2.8.040шт.1 649,0011 649,001649
Установка "мойдодыра"2.8.043шт.2 749,9512 749,952749,95
Установка смесителя на штанге2.8.049шт.1 149,4511 149,451149,45
Установка поддона душевой кабины2.8.054шт.1 741,1511 741,151741,15
Разводка труб горячего и холодного водоснабжения (металлопласт, полипропилен, сшитый полиэтилен) и канализации пвх в санузле , от коллекторов или шаровых кранов до потребителей , без переварки стояков водоснабжения и переборки стояка канализации2.8.062шт.3 055,50412 222,0012222
Разводка труб холодного водоснабжения (металлопласт, полипропилен, сшитый полиэтилен) и канализации пвх в санузле , от коллекторов или шаровых кранов до потребителей , без переварки стояков водоснабжения и переборки стояка канализации2.8.061шт.1 891,5035 674,505674,5
Переделка узла подводки радиатора отопления2.8.013шт.4 583,2514 583,254583,25
Переделка узла подводки водоснабжения ХВС,ГВС2.8.073шт.4 656,0014 656,004656
Стоимость



55 464,6055464,6
Общая стоимость



55 464,6055464,6
Общая стоимость работ
55 457 ₽
Электрика
Стоимость всех товаров: 64 014 ₽
Посмотреть
Скрыть
Назад
Электрика
Электрика
НазваниеКодЕд. изм.ЦенаОбъемСтоимостьФактически
Устройство эл. точки (установка подрозетника, распред. коробки)2.7.007шт. 383,15259 578,759578,75
Устройство точки в натяжном потолке2.7.0071шт. 485,00136 305,006305
Устройство временного электроснабжения2.7.008кв.м. 19,4018,43 357,54357,542
Устройство штрабы до 30х30 мм2.7.010п.м. 247,3562,515 459,3815459,375
Заделка штраб электрики2.7.011п.м. 33,9562,52 121,882121,875
Прокладка кабеля2.7.012п.м. 53,3529015 471,5015471,5
Установка распределительного эл.щита встраиваемого2.7.016шт.2 526,8512 526,852526,85
Установка автоматов защиты, дифф.автоматов, узо2.7.017шт. 232,80102 328,002328
Установка розетки, выключателя2.7.019шт. 135,80243 259,203259,2
Установка подвесного (накладного) светильника2.7.024шт. 436,5062 619,002619
Установка встроенных светильников в потолок ( диаметр врезного отверстия не более 100 мм)2.7.025шт. 242,5071 697,501697,5
Подключение ввода 220 v2.7.038шт.2 294,0512 294,052294,05
Стоимость



64 018,6564018,642
Общая стоимость



64 018,6564018,642
Общая стоимость работ
64 014 ₽
Отделка
Стоимость всех товаров: 225 143 ₽
Посмотреть
Скрыть
Назад
Отделка
Потолки
НазваниеКодЕд. изм.ЦенаОбъемСтоимостьФактически
Устройство натяжных потолков (пленка пвх)2.1.036кв.м. 824,5018,4315 195,5315195,535
Стоимость



15 195,5315195,535
Стены
НазваниеКодЕд. изм.ЦенаОбъемСтоимостьФактически
Грунтовка стен2.2.001кв.м. 24,2577,231 872,831872,8275
Штукатурка стен (по маякам) до 20 мм2.2.003кв.м. 417,1056,2323 453,5323453,533
Наклейка стеклохолста2.2.004кв.м. 97,0056,235 454,315454,31
Шпатлевка стен под покраску за 3 раза (включая финишную "шитрок")2.2.007кв.м. 378,3056,2321 271,8121271,809
Шлифовка стен2.2.009кв.м. 53,35112,45 996,545996,54
Окраска стен в/э краской за 2 раза2.2.017кв.м. 174,6056,239 817,769817,758
Монтаж малярных уголков2.2.021п.м. 63,055,9 372,00371,995
Кладка перегородок из пазогребневых блоков или пенобетона толщиной до 100 мм2.2.024кв.м. 417,1041 668,401668,4
Оштукатуривание стен цементно-песчаной смесью в санузлах до 20 мм2.2.038кв.м. 417,10218 759,108759,1
Штукатурка стен (по маякам) до 20 мм2.2.039кв.м. 417,1041 668,401668,4
Нанесение бетоноконтакта2.2.002кв.м. 38,8023 892,40892,4
Сверление отверстий в плитке2.2.084шт. 446,20125 354,405354,4
Затирка швов мелкоформатной плитки (цементная, поликолор)2.2.088кв.м. 276,4525,126 944,426944,424
Облицовка откосов из керамической плитки не стандартного размера (мелкоформатной)2.2.090п.м.1 115,502,93 234,953234,95
Грунтовка стен за 2 раза2.2.102кв.м. 48,5056,232 727,152727,155
Облицовка стен керамогранитной плиткой нестандартного размера (длинна одной из сторон меньше диапазона 20-60 см.)2.2.103кв.м.1 503,5025,1237 767,9237767,92
Грунтовка стен за 3 раза (под окраску)2.2.108кв.м. 72,7556,234 090,734090,7325
Стоимость



141 346,65141346,654
Полы
НазваниеКодЕд. изм.ЦенаОбъемСтоимостьФактически
Нанесение бетоноконтакта2.3.048кв.м. 43,6518,43 804,47804,4695
Стяжка цементно-песчанная (до 70 мм.)2.3.002кв.м. 421,9518,437 776,547776,5385
Чистовая стяжка самовыравнивающейся тонкослойной смесью (до 5 мм)2.3.003кв.м. 237,6518,434 379,894379,8895
Устройство гидроизоляции полов обмазочными составами2.3.004кв.м. 213,4028,336 045,626045,622
Грунтовка пола глубокого проникновения2.3.005кв.м. 29,1018,43 536,31536,313
Монтаж металлического порожка2.3.014п.м. 184,301 184,30184,3
Установка армирующей сетки2.3.017кв.м. 130,9518,432 413,412413,4085
Укладка керамзита (до 100 мм)2.3.021кв.м. 140,6518,432 592,182592,1795
Установка плинтусов на пол (пвх)2.3.042п.м. 145,50131 891,501891,5
Устройство звукоизоляции полов ("шуманет-100")2.3.045кв.м. 203,7021,44 359,184359,18
Затирка швов плитки (цементная, моноколор)2.3.057кв.м. 174,603,75 654,75654,75
Укладка кварц-винилового покрытия на пол (насухо)2.3.084кв.м. 358,9013,54 845,154845,15
Укладка керамогранитной плиткой нестандартного размера на пол (длина одной из сторон меньше или больше диапазона 20-60 см., но не превышает 100 см.)2.3.086кв.м.1 309,503,754 910,634910,625
Стоимость



41 393,9341393,9255
Окна, двери
НазваниеКодЕд. изм.ЦенаОбъемСтоимостьФактически
Установка подоконников ПВХ2.4.001шт. 824,501 824,50824,5
Герметизация и утепления швов примыкания оконного блока2.4.005п.м. 232,805,61 303,681303,68
Устройство откосов из сендвич или ПВХ панелей 2.4.009п.м. 601,405,63 367,843367,84
Стоимость



5 496,025496,02
Плитка
НазваниеКодЕд. изм.ЦенаОбъемСтоимостьФактически
Подрезка плитки2.6.053п.м. 155,2023,23 600,643600,64
Стоимость



3 600,643600,64
Общая стоимость



207 032,77207032,7745
Общие
Дополнительно
НазваниеКодЕд. изм.ЦенаОбъемСтоимостьФактически
Накладные расходы, % от стоимости работ0комп.18 128,28118 128,2818128,28
Стоимость



18 128,2818128,28
Общая стоимость



18 128,2818128,28
Итоговая стоимость



380 693,87380693,87
Общая стоимость работ
225 143 ₽



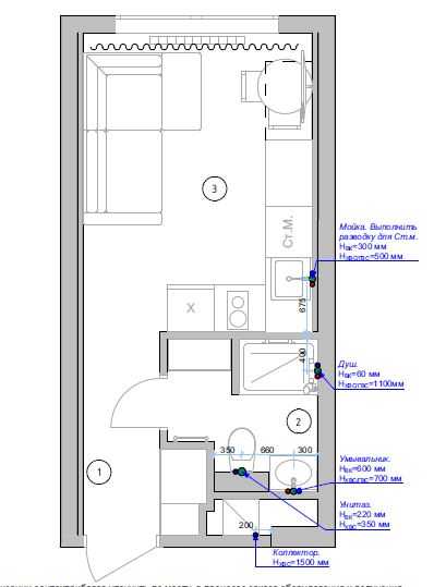
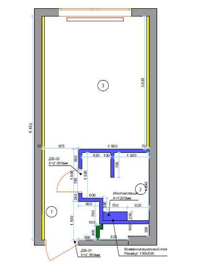
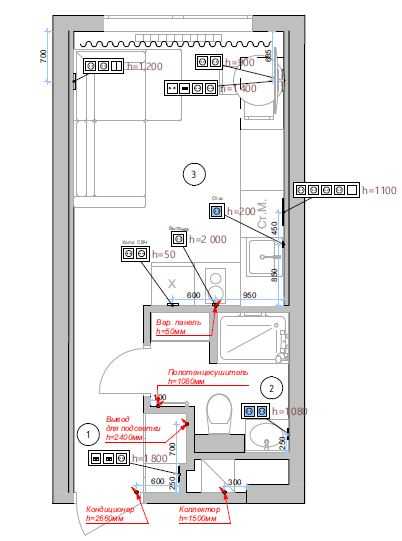
Планы квартиры в г. Москва, ЖК "Левел Амурская"

ТОВАРНАЯ ВЕДОМОСТЬ

Общая стоимость товаров – 130 933 ₽
Кухня-гостиная
Стоимость всех товаров: 55 126 ₽
Посмотреть
Скрыть
Назад
Мебель – 40 390 ₽
Диван угловой Милбург Textile Blue
Диван угловой Милбург Textile Blue
Диван угловой Милбург Textile Blue
Производитель:Диван.ру
Кол-во:1 шт.
Цена за ед:27 990 ₽
Товар в магазине
Общая цена: 27 990 ₽
Обеденный стол Eiffel диаметр 70
Обеденный стол Eiffel диаметр 70
Обеденный стол Eiffel диаметр 70
Производитель:Cosmo
Кол-во:1 шт.
Цена за ед:12 400 ₽
Товар в магазине
Общая цена: 12 400 ₽
Сантехника – 10 977 ₽
Мойка EMAR ЕММ-151 ЕММ-151 кухонная мойка, Сафари
Мойка EMAR ЕММ-151 ЕММ-151 кухонная мойка, Сафари
Мойка EMAR ЕММ-151 ЕММ-151 кухонная мойка, Сафари
Производитель:Emar
Кол-во:1 шт.
Цена за ед:4 386 ₽
Товар в магазине
Общая цена: 4 386 ₽
Смеситель EMAR 3004 PVD Golden
Смеситель EMAR 3004 PVD Golden
Смеситель EMAR 3004 PVD Golden
Производитель:Emar
Кол-во:1 шт.
Цена за ед:6 591 ₽
Товар в магазине
Общая цена: 6 591 ₽
Светильники – 3 759 ₽
Трековый светильник RULLO R1T436
Трековый светильник RULLO R1T436
Трековый светильник RULLO R1T436
Производитель:Lightstar
Кол-во:1 шт.
Цена за ед:1 339 ₽
Товар в магазине
Общая цена: 1 339 ₽
Бра DANAE SLE105801-01
Бра DANAE SLE105801-01
Бра DANAE SLE105801-01
Производитель:Evoluce
Кол-во:1 шт.
Цена за ед:2 420 ₽
Товар в магазине
Общая цена: 2 420 ₽
Общая стоимость работ
55 126 ₽
Санузел
Стоимость всех товаров: 75 807 ₽
Посмотреть
Скрыть
Назад
Отделка – 4 662 ₽
Керамический бордюр Kerama Marazzi Клемансо
Керамический бордюр Kerama Marazzi Клемансо
Керамический бордюр Kerama Marazzi Клемансо
Производитель:Kerama Marazzi
Кол-во:1 шт.
Цена за ед:130 ₽
Товар в магазине
Общая цена: 130 ₽
Клемансо Плитка настенная беж грань 16051 7,4х15
Клемансо Плитка настенная беж грань 16051 7,4х15
Клемансо Плитка настенная беж грань 16051 7,4х15
Производитель:Kerama Marazzi
Кол-во:1 шт.
Цена за ед:1 489 ₽
Товар в магазине
Общая цена: 1 489 ₽
Клемансо Плитка настенная оливковый грань 16055 7,4х15
Клемансо Плитка настенная оливковый грань 16055 7,4х15
Клемансо Плитка настенная оливковый грань 16055 7,4х15
Производитель:Kerama Marazzi
Кол-во:1 шт.
Цена за ед:1 558 ₽
Товар в магазине
Общая цена: 1 558 ₽
Керамогранит Primavera декор 1 18,6х18,6
Керамогранит Primavera декор 1 18,6х18,6
Керамогранит Primavera декор 1 18,6х18,6
Производитель:Creto
Кол-во:1 шт.
Цена за ед:1 485 ₽
Товар в магазине
Общая цена: 1 485 ₽
Сантехника – 70 340 ₽
Душевая дверь Glassline GSD3-100 P хpом+тpанспаpент
Душевая дверь Glassline GSD3-100 P хpом+тpанспаpент
Душевая дверь Glassline GSD3-100 P хpом+тpанспаpент
Производитель:Ravak
Кол-во:1 шт.
Цена за ед:24 000 ₽
Товар в магазине
Общая цена: 24 000 ₽
Электрический полотенцесушитель Terminus Виктория П7
Электрический полотенцесушитель Terminus Виктория П7
Электрический полотенцесушитель Terminus Виктория П7
Производитель:Terminus
Кол-во:1 шт.
Цена за ед:8 950 ₽
Товар в магазине
Общая цена: 8 950 ₽
Зеркало с LED-подсветкой MELANA-600
Зеркало с LED-подсветкой MELANA-600
Зеркало с LED-подсветкой MELANA-600
Производитель:Melana
Кол-во:1 шт.
Цена за ед:15 200 ₽
Товар в магазине
Общая цена: 15 200 ₽
Душевая колонна с верхним и ручным душем
Душевая колонна с верхним и ручным душем
Душевая колонна с верхним и ручным душем
Производитель:Belbagno
Кол-во:1 шт.
Цена за ед:19 600 ₽
Товар в магазине
Общая цена: 19 600 ₽
Раковина COMO 60, встраиваемая, белая
Раковина COMO 60, встраиваемая, белая
Раковина COMO 60, встраиваемая, белая
Производитель:Cersanit
Кол-во:1 шт.
Цена за ед:2 590 ₽
Товар в магазине
Общая цена: 2 590 ₽
Светильники – 805 ₽
Встраиваемый светильник City DL18454R12W1W
Встраиваемый светильник City DL18454R12W1W
Встраиваемый светильник City DL18454R12W1W
Производитель:Donolux
Кол-во:1 шт.
Цена за ед:805 ₽
Товар в магазине
Общая цена: 805 ₽
Общая стоимость работ
75 807 ₽
Отзыв на проект
Очень доволен работой с Rerooms. Для моей небольшой студии делали дизайн проект. Дизайнер Ульяна сумела быстро понять что мне хотелось бы видеть в интерьере, предложила удачные варианты расположения мебели. Цены вполне приемлемые, качество отличное, сроки выдержены. В финальном проекте указаны ссылка на мебель и материалы, которые указаны в проекте, компания помогает все закупить и доставить. Мои лучшие рекомендации команде Рерумс. :)
Отзывы наших клиентов в социальных сетях
В наших группах вы найдете выполненные дизайн-проекты с отзывами клиентов и ссылкой на их профиль. Вы можете написать им лично и получить рекомендации о нас.
У нас уже более 500 положительных отзывов. Возможно, среди них есть ваши друзья.
Все отзывы Rerooms

Цена авторского дизайн-проекта интерьера

Стоимость фиксирована и актуальна для Москвы и по всей России для квартир до 120 кв.м.
50%
SALE
Пакет
"Интерьерный"
Всё необходимое для создания планировочного решения, подбора и покупки мебели. В проект можно добавить визуализацию в 3D, уточняйте при заказе.
Цена за квартиру-студию
44 990 ₽
24 990 ₽
Посмотреть подробные ценыЗаказать дизайн
50%
SALE
Пакет
"Для ремонта"
Вся необходимая рабочая документация и чертежи для быстрого воплощения вашего дизайна ремонтной бригадой и подробная смета на ремонт.
Цена за квартиру-студию
46 490 ₽
26 490 ₽
Посмотреть подробные ценыЗаказать дизайн
50%
SALE
Пакет
"Премиум"
Все услуги пакета "Интерьерный", а также полная рабочая документация, детальные чертежи и авторский надзор за ремонтными работами.
Цена за квартиру-студию
89 990 ₽
69 990 ₽
Посмотреть подробные ценыЗаказать дизайн
Услуги ремонта доступны в Москве и Санкт-Петербурге
Мы используем cookie чтобы сайт был удобным
Хорошо