Назад
| Электрика | ||||||
| Электрика | ||||||
| Название | Код | Ед. изм. | Цена | Объем | Стоимость | Фактически |
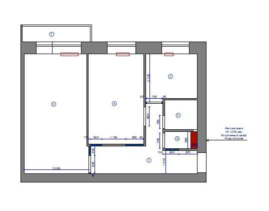
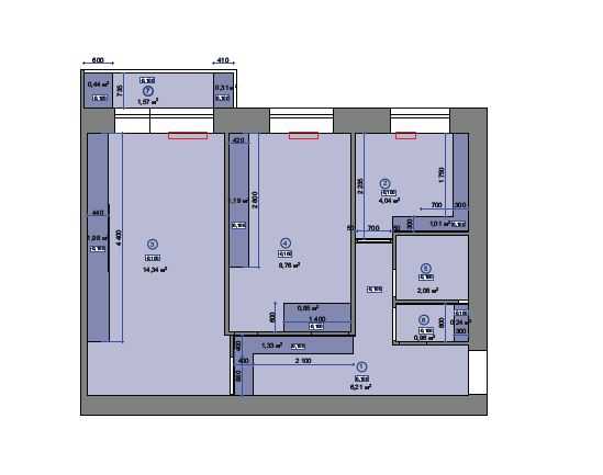
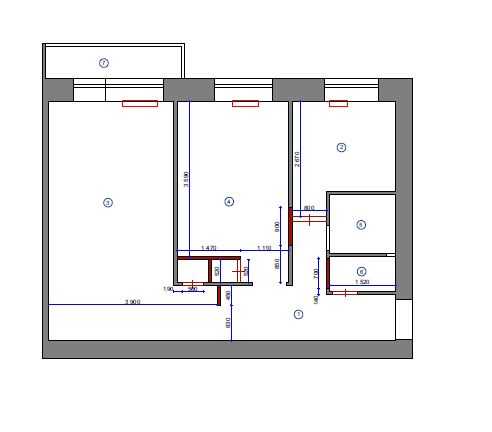
| Устройство эл. точки (установка подрозетника, распред. коробки) | 2.7.007 | шт. | 395,00 | 48 | 18 960,00 | 18960 |
| Устройство точки в натяжном потолке | 2.7.0071 | шт. | 500,00 | 25 | 12 500,00 | 12500 |
| Устройство штрабы до 30х30 мм | 2.7.010 | п.м. | 255,00 | 65 | 16 575,00 | 16575 |
| Заделка штраб электрики | 2.7.011 | п.м. | 35,00 | 65 | 2 275,00 | 2275 |
| Прокладка кабеля | 2.7.012 | п.м. | 55,00 | 340 | 18 700,00 | 18700 |
| Установка распределительного эл.щита накладного | 2.7.015 | шт. | 620,00 | 1 | 620,00 | 620 |
| Установка автоматов защиты, дифф.автоматов, узо | 2.7.017 | шт. | 240,00 | 12 | 2 880,00 | 2880 |
| Установка розетки, выключателя | 2.7.019 | шт. | 140,00 | 38 | 5 320,00 | 5320 |
| Установка проходного выключателя | 2.7.020 | шт. | 275,00 | 4 | 1 100,00 | 1100 |
| Установка tв, tелефонной, интернет розетки | 2.7.021 | шт. | 180,00 | 6 | 1 080,00 | 1080 |
| Установка люстры (без сборки) | 2.7.023 | шт. | 990,00 | 2 | 1 980,00 | 1980 |
| Установка встроенных светильников в растровый или ГКЛ потолок ( диаметр врезного отверстия не более 100 мм) | 2.7.025 | шт. | 250,00 | 23 | 5 750,00 | 5750 |
| Подключение ввода 220 v | 2.7.038 | шт. | 2 365,00 | 1 | 2 365,00 | 2365 |
| Стоимость | 90 105,00 | 90105 | ||||
| Общая стоимость | 90 105,00 | 90105 | ||||
Общая стоимость работ
90 105 ₽



